L’idea per rifare “Il fare”: diventerebbe Gallarate City Mall

Che aspetto potrebbe avere in futuro “Il fare”, il centro commerciale chiuso da quindici anni a Gallarate?
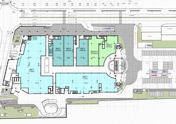
Compaiono online i primi render del progetto di rifacimento della struttura di viale Lombardia.
Nuovo nome commerciale: Gallarate City Mall, nuovo brand – ovviamente – per prendere il posto del centro commerciale simbolo del maggior fallimento di operazione urbanistica visto a Gallarate, che durò solo un paio di anni.
I render vengono dal sito dedicato al progetto, attivato da Clhnpl (operatore di real estate con grandi interventi soprattutto su Milano), su cui è disponibile anche come pdf scaricabile per chi fosse interessato a inserirsi nell’operazione, avviata con l’acquisto per 1,3 milioni della vecchia struttura, passata dall’asta fallimentare con diversi ribassi.
Le planimetrie confermano le modifiche previste ai parcheggi, di cui pochi giorni fa parlava l’assessore Sandro Rech, anticipando il possibile inizio dei lavori a primavera 2026, proprio da questo settore dell’immobile.
Tra le altre idee c’è una pista di go-kart al piano 1, insieme ad un’area food. Tra piano 0 e piano -1 invece le unità commerciali (di piccole e medie dimensioni, come da inquadramento urbanistico) compresa – anche qui – l’immancabile offerta food.

L'articolo Addio a Mauro Di Francesco, volto delle commedie italiane anni Ottanta sembra essere il primo su VareseNews.
Qual è la tua reazione?
Mi piace
0
Antipatico
0
Lo amo
0
Comico
0
Furioso
0
Triste
0
Wow
0




